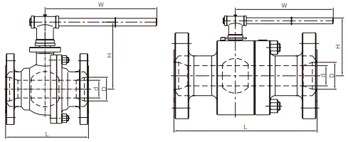
1. Technical G.A Drawing of Split Body Floating Ball Valve Full Port Class 900
2. Dimension & Weight of Split Body Floating Ball Valve Full Port Class 900
|
CLASS 900 FULL PORT
|
|||||||
|
NPS
|
d
|
L-RF
|
L-RTJ
|
L-WE
|
H
|
W
|
Weight(kg)
|
|
1/2"
|
13
|
216
|
216
|
216
|
75
|
140
|
5
|
|
3/4"
|
19
|
229
|
229
|
229
|
91
|
180
|
8
|
|
1"
|
25
|
254
|
254
|
254
|
108
|
250
|
10
|
|
1-1/2"
|
38
|
305
|
305
|
305
|
133
|
400
|
20
|
|
2"
|
49
|
368
|
371
|
368
|
150
|
500
|
30
|
|
2-1/2"
|
62
|
419
|
422
|
419
|
155
|
500
|
42
|
|
3"
|
74
|
381
|
384
|
381
|
160
|
500
|
55
|
|
4"
|
100
|
|
|
|
|
|
|
1) All dimensions are in mm unless otherwise specified.
2) All ball valves are furnished with anti blow-out stem, fire safe and anti-static design.
3) Design standards: API 6D / API 608 / ASME B16.34.
4) Face to Face dimensions are according to ASME B16.10.
5) Inspected & Tested according to: API 598 / API 6D.
6) Material selection as per "Introduction to Ball Valve: Materials".





